Listed by Engel & Volkers Casco Bay
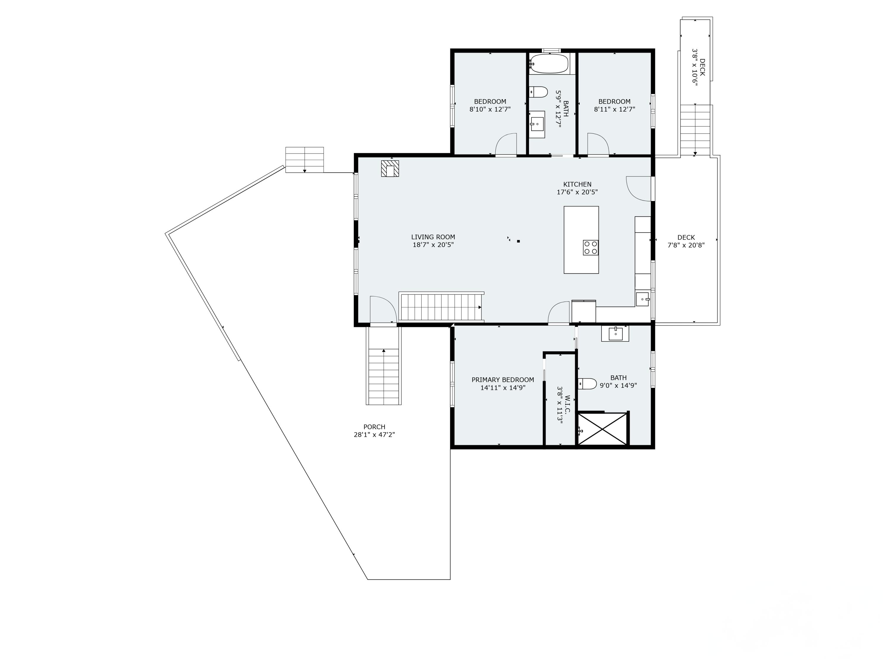
Brand New Floors throughout! Welcome to this beautifully crafted, brand-new custom home in the highly sought-after Redington East neighborhood. Designed with both style and sustainability in mind, this exquisite craftsman-style retreat is built with durable cedar log siding, ensuring longevity and resistance to rot. Enjoy year-round comfort with a highly efficient geothermal heating and cooling system, the greenest climate control solution available-offering significant energy savings while reducing your environmental footprint. An automatic 48kW generator ensures uninterrupted power, while the self-owned 1,000-gallon propane tank provides added convenience. Inside, this three-bedroom, three-bathroom home boasts high-end finishes throughout. The luxurious master bath features a spa-like steam shower, while each bathroom is elegantly designed with modern tile work and sleek vanities. The 10-gallon-per-minute water pump guarantees strong water pressure, even when multiple fixtures are in use. At the heart of the home, the chef's kitchen is a dream come true, equipped with premium appliances, including a one-piece convection oven, convection microwave, and induction cooktop. The oversized kitchen island invites conversation and seamlessly connects to the open-concept living space, where expansive windows flood the home with natural light. Step outside to enjoy the great outdoors on two spacious decks, one of which features a six-person hot tub. The large, private yard with a fire pit is perfect for relaxing or entertaining guests. A two-car garage with direct interior access includes an electric vehicle charging station for modern convenience. Located on the Sugarloaf shuttle route, this home is the perfect ski retreat for Sugarloaf enthusiasts-offering easy access to world-class skiing, hiking, and outdoor adventure.

Listing Tools (detailViewNewGen)

Property Details of 2013 Pine Road

Property Details

Interior Features

Exterior Features

Community

Map Location

Listing data is derived in whole or in part from the Maine IDX & is for consumers' personal, non commercial use only. Dimensions are approximate and not guaranteed. All data should be independently verified. ©2025 Maine Real Estate Information System, Inc. All Rights Reserved. equal opportunity housing logo   Privacy Policy

Benchmark Real Estate | Maine participates in ©2025 Maine Listings Internet Data Exchange program, allowing us to display other Maine IDX Participants' listings. This website does not display complete listings. Certain listings of other real estate brokerage firms have been excluded. Mortgage figures are estimates. Check with your bank or proposed mortgage company for actual interest rates. This product uses the FRED® API but is not endorsed or certified by the Federal Reserve Bank of St. Louis.

Hi there! How can we help you?

Contact us using the form below or give us a call.

Send Us A Message:

I agree to receive marketing and customer service calls and text messages from Benchmark Real Estate | Maine. To opt out, you can reply 'stop' at any time or click the unsubscribe link in the emails. Consent is not a condition of purchase. Msg/data rates may apply. Msg frequency varies. Privacy Policy.

Do not fill in this field:

This site is protected by reCAPTCHA and the Google Privacy Policy and Terms of Service apply.

Hi there! How can we help you?

Contact us using the form below or give us a call.

Send Us A Message:

Do not fill in this field:

This site is protected by reCAPTCHA and the Google Privacy Policy and Terms of Service apply.

Hi there! How can we help you?

Contact us using the form below or give us a call.

Send Us A Message:

Do not fill in this field:

This site is protected by reCAPTCHA and the Google Privacy Policy and Terms of Service apply.

Do not fill in this field:

This site is protected by reCAPTCHA and the Google Privacy Policy and Terms of Service apply.

Do not fill in this field:

This site is protected by reCAPTCHA and the Google Privacy Policy and Terms of Service apply.

Do not fill in this field:

This site is protected by reCAPTCHA and the Google Privacy Policy and Terms of Service apply.

$

Do not fill in this field:

This site is protected by reCAPTCHA and the Google Privacy Policy and Terms of Service apply.