Listed by Keller Williams Coastal and Lakes & Mountains Realty
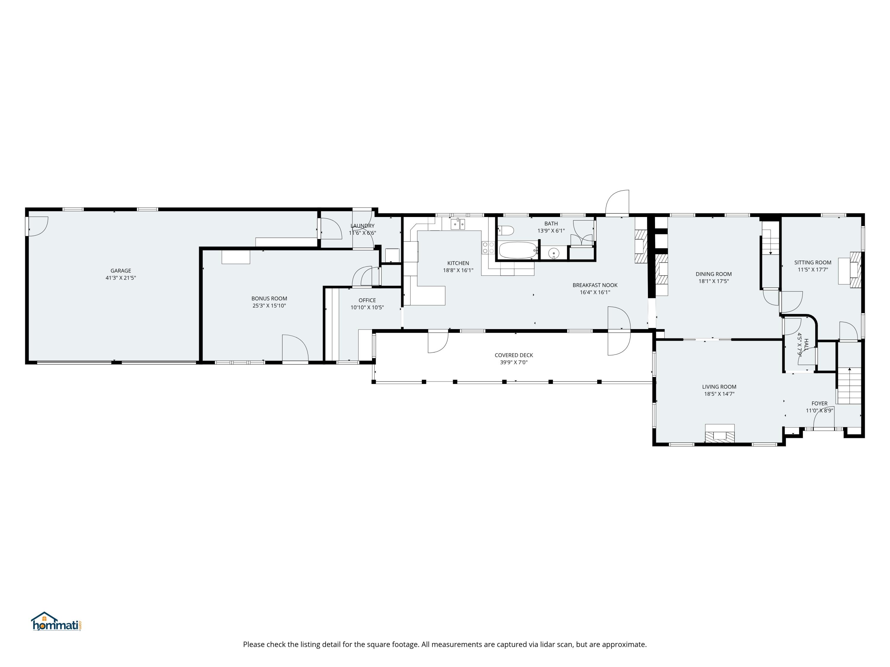
Welcome, Antique Home Lovers! Built in 1826 by local sea captain Tristan Jordan, this remarkable residence stands as a proud testament to early American craftsmanship. Its handsome brick faade lends a stately presence within this historic seaside community, offering timeless curb appeal that has endured for two centuries. A long, inviting front porch sets the stage for summer gatherings overlooking the level 1.1-acre yard, shaded by mature trees. Guests are welcomed into a classic foyer adorned with exquisite trim and built-in shelving -- perfect for displaying treasured heirlooms. An arched opening leads to the gracious living room and adjoining dining room, where large windows, hardwood floors, and striking original brick create the richness and warmth expected of a home of this era. A flexible adjoining room serves beautifully as an office or library. Transitioning toward the kitchen, an intermediate space offers room for a breakfast table or buffet setup for entertaining. The updated kitchen was designed to complement the home's period character while offering modern convenience, including quartz countertops, wall oven, a beverage refrigerator, and abundant cabinetry. A Butler's Pantry provides additional storage. At the rear of the home, a mudroom and laundry area connect to a generous bonus room -- currently a carpeted children's playroom -- easily adaptable to suit your needs. Upstairs, the primary bedroom showcases custom-crafted wall appliqus that honor the home's antique spirit. Two more bedrooms complete the 2nd floor, one presently serving as a home office. The upstairs bath features a pedestal sink and deep soaking tub. The property includes a freestanding 600 SF heated post-and-beam building. It can function as an office, studio, guest retreat -- the possibilities are yours to imagine. Lovingly maintained by devoted stewards of antique homes, this special property is ready for its next chapter. Will you become part of its enduring story?

Listing Tools (detailViewNewGen)

Property Details of 18 Buxton Road

Property Details

Interior Features

Map Location

Listing data is derived in whole or in part from the Maine IDX & is for consumers' personal, non commercial use only. Dimensions are approximate and not guaranteed. All data should be independently verified. ©2026 Maine Real Estate Information System, Inc. All Rights Reserved. equal opportunity housing logo   Privacy Policy

Benchmark Real Estate | Maine participates in ©2026 Maine Listings Internet Data Exchange program, allowing us to display other Maine IDX Participants' listings. This website does not display complete listings. Certain listings of other real estate brokerage firms have been excluded. Mortgage figures are estimates. Check with your bank or proposed mortgage company for actual interest rates. This product uses the FRED® API but is not endorsed or certified by the Federal Reserve Bank of St. Louis.

Hi there! How can we help you?

Contact us using the form below or give us a call.

Send Us A Message:

I agree to receive marketing and customer service calls and text messages from Benchmark Real Estate | Maine. To opt out, you can reply 'stop' at any time or click the unsubscribe link in the emails. Consent is not a condition of purchase. Msg/data rates may apply. Msg frequency varies. Privacy Policy.

Do not fill in this field:

This site is protected by reCAPTCHA and the Google Privacy Policy and Terms of Service apply.

Hi there! How can we help you?

Contact us using the form below or give us a call.

Send Us A Message:

Do not fill in this field:

This site is protected by reCAPTCHA and the Google Privacy Policy and Terms of Service apply.

Hi there! How can we help you?

Contact us using the form below or give us a call.

Send Us A Message:

Do not fill in this field:

This site is protected by reCAPTCHA and the Google Privacy Policy and Terms of Service apply.

Do not fill in this field:

This site is protected by reCAPTCHA and the Google Privacy Policy and Terms of Service apply.

Do not fill in this field:

This site is protected by reCAPTCHA and the Google Privacy Policy and Terms of Service apply.

Do not fill in this field:

This site is protected by reCAPTCHA and the Google Privacy Policy and Terms of Service apply.

$

Do not fill in this field:

This site is protected by reCAPTCHA and the Google Privacy Policy and Terms of Service apply.