Listed by Keller Williams Realty (207-240-7771)
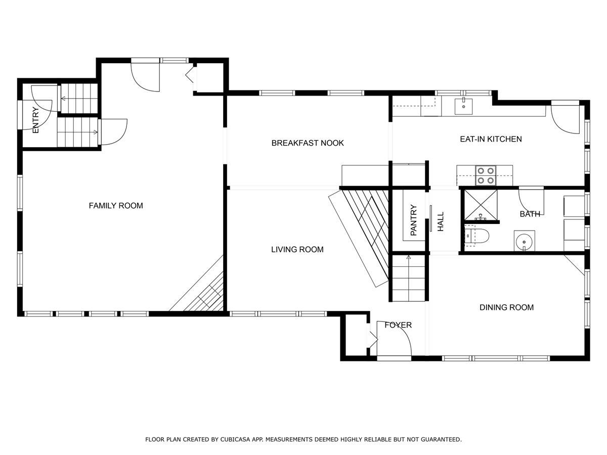
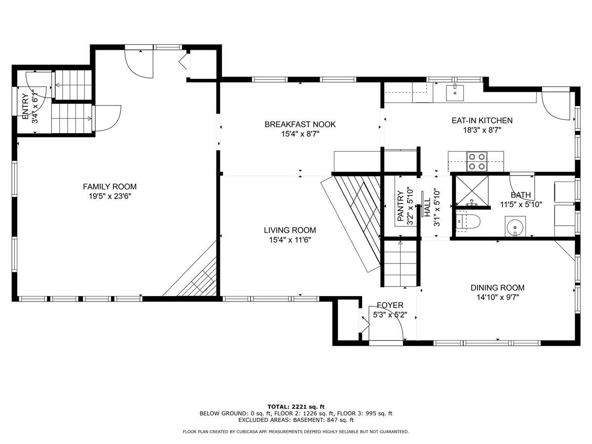
Welcome to this classic 5-bedroom, 2-bath New Englander set in the oceanside Camp Ellis neighborhood, offering character, versatility, and proven excellent rental potential. With two cozy fireplaces, a covered front porch, and a relaxed coastal vibe, this home is ideal as a primary residence, vacation home, or investment property. For investors, this property offers strong income potential, with a proven solid rental history of roughly 800 per night on VRBO and space for up to 12 guests. Inside, you'll find a flexible floor plan with multiple living areas, perfect for hosting friends and family or setting up quiet work/study spaces. The property's proximity to UNE and local hospitals makes it an easy, attractive rental for UNE medical students or traveling professionals. Step outside to enjoy a detached garage and an outdoor shower--perfect after a day at the beach--along with a fire pit area for evening gatherings. A loft/studio space above the garage, already outfitted with electrical, offers exciting potential; just add plumbing to create an additional income-producing unit or a private guest suite. Located in the sought-after Camp Ellis area, you'll love: A short stroll to the beach and working waterfront Neighborhood trails for biking and walking The charm of an oceanside community while still being convenient to town amenities Furniture can convey with the sale, making this an easy turn-key opportunity for buyers and investors alike.

Listing Tools (detailViewNewGen)

Property Details of 10 Lower Beach Road

Property Details

Interior Features

Exterior Features

Community

Map Location

Listing data is derived in whole or in part from the Maine IDX & is for consumers' personal, non commercial use only. Dimensions are approximate and not guaranteed. All data should be independently verified. ©2026 Maine Real Estate Information System, Inc. All Rights Reserved. equal opportunity housing logo   Privacy Policy

Benchmark Real Estate | Maine participates in ©2026 Maine Listings Internet Data Exchange program, allowing us to display other Maine IDX Participants' listings. This website does not display complete listings. Certain listings of other real estate brokerage firms have been excluded. Mortgage figures are estimates. Check with your bank or proposed mortgage company for actual interest rates. This product uses the FRED® API but is not endorsed or certified by the Federal Reserve Bank of St. Louis.

Hi there! How can we help you?

Contact us using the form below or give us a call.

Send Us A Message:

I agree to receive marketing and customer service calls and text messages from Benchmark Real Estate | Maine. To opt out, you can reply 'stop' at any time or click the unsubscribe link in the emails. Consent is not a condition of purchase. Msg/data rates may apply. Msg frequency varies. Privacy Policy.

Do not fill in this field:

This site is protected by reCAPTCHA and the Google Privacy Policy and Terms of Service apply.

Hi there! How can we help you?

Contact us using the form below or give us a call.

Send Us A Message:

Do not fill in this field:

This site is protected by reCAPTCHA and the Google Privacy Policy and Terms of Service apply.

Hi there! How can we help you?

Contact us using the form below or give us a call.

Send Us A Message:

Do not fill in this field:

This site is protected by reCAPTCHA and the Google Privacy Policy and Terms of Service apply.

Do not fill in this field:

This site is protected by reCAPTCHA and the Google Privacy Policy and Terms of Service apply.

Do not fill in this field:

This site is protected by reCAPTCHA and the Google Privacy Policy and Terms of Service apply.

Do not fill in this field:

This site is protected by reCAPTCHA and the Google Privacy Policy and Terms of Service apply.

$

Do not fill in this field:

This site is protected by reCAPTCHA and the Google Privacy Policy and Terms of Service apply.